Casa Favila

Fagan Exterior

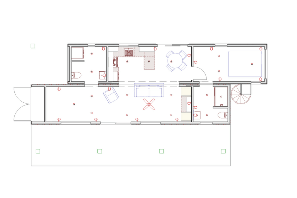
We’re excited to share one of our latest custom builds—a stunning container home located in Southwest Georgia, made from two 40ft containers. This one-bedroom, two-bath home features an extended open-concept kitchen and living area that offers both space and comfort. This home is a similar floorplan to the Clark, but instead of two bedrooms, has a larger living area with built in storage.

A few standout features include:

  • A rooftop deck with a sleek railing and spiral staircase—ideal for enjoying the outdoors.
  • Quartz countertops that add a clean, high-end finish to the kitchen.
  • A complete appliance package including a washer/dryer, refrigerator, and oven/stove with range hood for easy, everyday living.
  • A canopy that provides cover to the container and patio areas.

More Builds

Are you ready to buy a container home?